0

Maison coeur de ville

Rueil-Malmaison (92500)
Réf : 85

Exclusivité pour cette maison en coeur de ville de 123 m² habitable et 145 m² au sol comprenant:

- au rez de chaussée une entrée, une cuisine, un séjour, un salon ouvrant sur jardin et un WC.

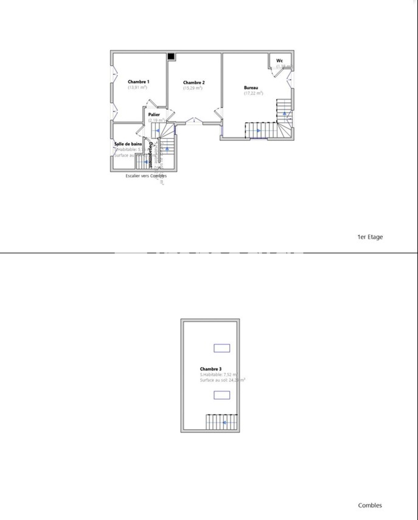
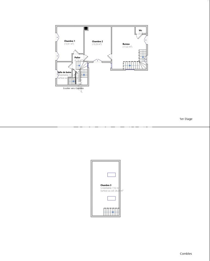
- au 1er étage: 2 chambres et un grand bureau avec sanitaire pouvant idéalement se transformer en troisième chambre et une salle de bains.

- au 2eme étage: dans les combles une quatrième chambre potentielle.

- un sous sol et un jardin de 150 m² complètent le bien.

- un parking en sous-sol à 2 minutes de la maison vous aidera au quotidien.


Les informations sur les risques auxquels ce bien est exposé sont disponibles sur le site Géorisques
découvrir le bien
Prix du bien 1 120 000 €
Pièce(s) 6
Chambre(s) 4

Caractéristiques du bien

Caractéristiques Valeurs
Code postal 92500
Surface habitable (m²) 123 m²
surface terrain 206 m²
Surface loi Carrez (m²) 123 m²
Nombre de chambre(s) 4
Nombre de pièces 6
Nombre de niveaux 2
Vue sans vis à vis
Nb de salle de bains 1
Cuisine Séparée
Mode de chauffage Gaz
Type de chauffage TRAD_TYPE_CHAUFF_CHAUDIERE
Format de chauffage Individuel
Terrasse OUI
Murs mitoyens 1
Nombre de garage 1
Cave OUI
Nombre de parking 1
Exposition Sud-Ouest
Année de construction 1900

Infos financières

Caractéristiques Valeurs
Prix de vente honoraires TTC inclus 1 120 000 €
Prix de vente honoraires TTC exclus 1 076 923 €
Honoraires TTC à la charge acquéreur 4 %
Taxe foncière annuelle 2 240 €

Bilans énergétiques

DPE GES
Ce bien vous intéresse ?
Fieldset par défaut
Fieldset par défaut
Validation

* Champs obligatoires

Contacter l'agence
Validation
Les informations recueillies sur ce formulaire sont enregistrées dans un fichier informatisé par La Boite Immo agissant comme Sous-traitant du traitement pour la gestion de la clientèle/prospects de l'Agence / du Réseau qui reste Responsable du Traitement de vos Données personnelles. La base légale du traitement repose sur l'intérêt légitime de l'Agence / du Réseau. Elles sont conservées jusqu'à demande de suppression et sont destinées à l'Agence / au Réseau. Conformément à la loi « informatique et libertés », vous disposez des droits d’accès, de rectification, d’effacement, d’opposition, de limitation et de portabilité de vos données. Vous pouvez retirer votre consentement à tout moment en contactant directement l’Agence / Le Réseau. Consultez le site https://cnil.fr/fr pour plus d’informations sur vos droits. Si vous estimez, après avoir contacté l'Agence / le Réseau, que vos droits « Informatique et Libertés » ne sont pas respectés, vous pouvez adresser une réclamation à la CNIL. Nous vous informons de l’existence de la liste d'opposition au démarchage téléphonique « Bloctel », sur laquelle vous pouvez vous inscrire ici : https://www.bloctel.gouv.fr Dans le cadre de la protection des Données personnelles, nous vous invitons à ne pas inscrire de Données sensibles dans le champ de saisie libre.
Ce site est protégé par reCAPTCHA, les Politiques de Confidentialité et les Conditions d'Utilisation de Google s'appliquent.

Localisationdu bien

  • Commerces et santé
  • Loisirs
  • Ecoles
  • Transports
  • Pratique